Lime Entertainment Development

Concept Design, Branding,
Environmental Graphics, Signage, & Wayfinding

May 2020 

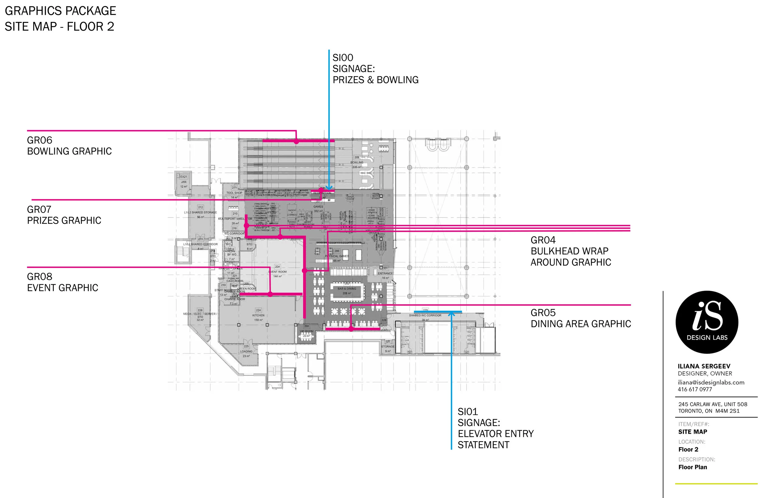
Find the below partial signage and graphics package developed for the Lime.
Created in collaboration with Revel House.